近年來,扣件式鋼管腳手架因具有構造簡單、裝拆方便、傳力合理、使用耐久、牢固穩定、造價適宜、多次周轉等特點,在**、多層建筑施工中的使用越來越廣泛,對它安全可靠度的探索就顯得尤為重要。分析今年國內外發生的幾起鋼管腳手架倒塌事故案例,幾乎都是由于連墻件設置不當或連墻件被拆除而未及時補救引起的。本文結合《建筑施工扣件式鋼管腳手架安全技術規范》JGJ130-2001(以下簡稱《規范》)針對比較常見的落地式雙排鋼管架的連墻件設置的共性問題加于探討,供同行們參考。
一、連墻件的作用分析
單雙排腳手架扣件式鋼管架可以當做是由縱、橫著水平桿與立柱構成的特殊的雙層、多跨架構鋼架結構,連墻件的作用不可忽視。
鋼管腳手架聯接構件的腳手架扣件連接點,在載荷的作用下具有相當的抗旋轉能力(即剛度),但由于腳手架扣件本身質量和扭緊程度均影響連接點的剛度,因此此架構為半剛度連接點架構,鋼管腳手架的橫著總寬比其豎向長短、縱向高度要小得多,因此對一面墻的鋼管腳手架又可視作一塊兒“格構式”平板,由于它在垂直平分房屋建筑表面方向的彎曲剛度較弱,遠低于其豎向,因此鋼管腳手架必須借助與房屋建筑的可靠聯接(即設置連墻件)才具有承擔其重量、施工載荷日風載荷的能力。
連墻件為鋼管腳手架與結構主體之間的撐支撐桿和限制鋼管腳手架豎向自由變形長短的約束力曲軸,并作為承擔水平力作用的橡膠支座。
(1)將鋼管腳手架與建筑結構工程聯接起來,保證鋼管腳手架整體穩定和使用安全。
(2)約束力鋼管腳手架在縱向載荷作用下的變形,減少立柱計算長度,提高鋼管腳手架橫著彎曲剛度,提升其向內或向外的抗坍塌能力和承重穩定性。
(3)抵御風載荷及其他水平載荷作用并發送給工程結構。
(4)抵御因路基不勻稱地基沉降引起的內力,使內力重新分布,以降低模板支撐內部的集中地應力,避免模板支撐出現部分毀壞。
(5)提升鋼管腳手架整體、或部分、或基礎薄弱方向的彎曲剛度。
二、連墻件的結構形式
連墻件的結構可分為以下兩種形式:
壓腿與頂撐配合使用的附墻聯接:由壓腿(8#不銹鋼絲或Ф6毫米建筑鋼筋)、頂撐、腳手架扣件等預制構件構成,其壓腿只能承擔抗拉力,壓力由頂撐傳送。這種結構形式因彎曲剛度較弱,故其受限制使用,文中建議在實際架設中采用第2種形式作法……
剛度連墻件與房屋建筑可靠聯接:由連墻桿、腳手架扣件與埋件構成。其連墻桿即能承擔抗拉力又能承受力,具有很大彎曲剛度,在載荷作用下變形不大。實際使用中,埋件的作法是在預埋件點預埋件30厘米~40厘米的短無縫鋼管同梁筋或柱筋電焊焊接(如圖所示1a),采用無縫鋼管和腳手架扣件將埋件和外架內外立柱固定。但使用埋件的作法存在位置精確性不易控制,后期修復勞動量很大等問題。
文中介紹另一種作法供施工時對比采用:在規定的拉節點位置利用專用小橫杠進行拉接。專用小橫杠的作法比一般小橫杠加長25厘米左右,用一塊兒薄厚δ≥8毫米,尺寸為100X100mm的長方形Q235厚鋼板與小橫杠梁端進行全位置電焊焊接,頂角開兩個Ф10的金屬脹錨地腳螺栓頂角拉接(如圖所示1b)。
經查看相關技術文檔列式計算,其抗拔力為14kN,符合拉接要求。比用斜角或轉動腳手架扣件卡緊(查《規范》5.1.7腳手架扣件抗滑力設計值8kN)和8#不銹鋼絲拉結法(φ4不銹鋼絲抗壓強度為11.3kN)安全。其施工關鍵點有:
一是金屬脹錨地腳螺栓應建在混凝土結構結構上,若為磚混,則應設置在圈梁或構造柱上;
二是應對角設地腳螺栓,保證抗拔力和平衡支承。

三、連墻件設計計算中的關鍵點
3.2計算連墻件徑向力設計值Nl
4.3計算連墻件穩定承載能力
3.2列式計算腳手架扣件的抗滑承載能力,滿足R≤Rc
3.4計算預埋件無縫鋼管的抗剪承載能力
四、連墻件的設置要求
4.1建筑H≤50m時,連墻件按25㎡~35㎡(垂直平分豎直架面方向的迎風總面積)設置一點,連墻件設置的最大間隔符合《規范》表6.4.1的規定。
4.2H≤50m時,鋼管腳手架邊緣和角處的連墻件必須按兩步一跨數據加密設置,數據加密總寬為一跨,即:在角處的第二條(兩個方向)的內立柱上數據加密設置,以提升鋼管腳手架的全面性和抵御風載荷作用的能力;一字形、張口型鋼管腳手架兩邊必須數據加密設置連墻件,其豎直間隔不可超過房屋建筑樓高,并不應超過4m(同時不可超過2步)。如圖所示2a、b、c

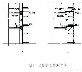
4.3連壁材設置在腳手架立柱和橫桿的主節點上,或者設置在距主節點不超過30 cm的范圍內,應減少支撐水平力的支撐臺的偏心作用對立柱剛性的影響,偏心超過30 cm時,有以下兩種處理方法。 如圖3 a、b那樣。

4.4 連墻件需從最底層首先大橫杠處開始設置,實際架設中因為一層的建筑樓高多超過鋼管腳手架最大控制步高(2m),而于結構一層梁處開始設置,或者由于一層梁板處并未進行埋件設置和混凝土澆筑混泥土,造成在架設首先鋼管腳手架并設置連墻件有因難,這時應采用斜撐來替代水平連墻件作為臨時結構加固設置,其設置同7m以下模板支撐采用拋撐的形式一樣;拋撐應采取通長構件與鋼管腳手架可靠聯接,與地面的傾斜角α應在45.~60.之間,在連墻件設置側后方可拆卸。具體設置如圖4所示。

4.5結構倒數第三層應設置連墻桿,且宜數據加密設置,即每兩跨設置一條,以增大上端懸壁段模板支撐的穩定性及抗坍塌能力。其原因有兩點:
4.5.124m以上的鋼管腳手架,必須采用剛度連墻件與房屋建筑可靠聯接(《規范》6.4.4)。因外墻防水要求不能預埋件無縫鋼管,無法設置剛度連墻件,其上端就有6~6.5m高架橋體(樓高再加女兒墻高度)沒有可信性拉接,而風載荷隨地面高度呈線形增大,風載荷對這些懸壁狀態的模板支撐影響使鋼管腳手架的整體穩定性和抗坍塌性大降低,易造成全面性塌陷。
4.5.2當此道連墻件作為最后一條設置時,由于風載荷隨高度增加,其連墻件每點的最大承荷總面積(相應于每點迎風總面積)必定減少,而風載荷的縱向高度為上述懸壁高度與連墻件縱向鄰近間隔的一大半相加,它相對來說很大,因此其連墻件水平間隔應該減少,即數據加密設置。
4.6連墻點宜優先選擇采用棱形布局,也可采用正方形、矩形框布局,宜按縱向架面盡量聯合分布(在結構層高和建筑**有變化時不容易達到),這樣在步高與縱距相同的情況下,就可以避免模板支撐發生部分失穩毀壞,進而只需對整體穩定性進行控制。如圖5所示5、圖2a、b、c

5.1 模板支撐在24m以下時可以采用剛度連墻件與剛性連墻件結合設置,但超出24m時就不適合用剛性連墻件。剛性拉接可采用在主體工程內預埋件φ6建筑鋼筋與模板支撐拉接(建筑鋼筋彎折后與內立柱電焊焊接),或用雙股8#不銹鋼絲(φ4)與模板支撐拉接,同時必須設頂撐,使其可靠地頂在圈梁、柱等結構部位;剛度連墻件宜呈水平并垂直平分墻壁設置,與鋼管腳手架聯接的一邊也可略微下斜;因為無縫鋼管的支撐桿穩定比壓桿穩定好,連墻件上翹時不僅承擔水平風載荷的壓力,也同時承擔鋼管腳手架縱向載荷產生的壓力,因此作為鋼管腳手架穩定的重要預制構件,連墻件不適合上翹。如圖所示2a、b、c
5.2連墻件兩邊連接點應聯接堅固。其腳手架扣件就有足夠的抗滑力和抗裂度,應通過載荷列式計算來確定每根連墻件所設置的止滑腳手架扣件數量,同時承擔剛性連墻件頂撐所傳送載荷的墻面以及承擔剛度連墻件埋件所傳送載荷的主體工程都需有足夠的承載力。如圖所示2a、b、c
5.3越過窗門洞邊在房間內支撐點構件固定的連墻件,宜用圖例的支撐點結構。如圖6所示6a、b

5.4挨近邊柱與角柱的埋件,需離柱相應側緣10~20厘米,以利于連墻件的設置和安裝時的施工操作。如圖所示1a、b
5.5房屋建筑的現澆板攔板式生活陽臺處的連墻件設置,可以有兩種處理過程:1)采用剛度連墻件,用φ6.3厘米的pVc管作為連墻件的套筒規格,以防于拆架時的激光切割。2)直接利用攔板進行設置。如圖所示7

六、連墻件拆卸的安全防范措施
6.1模板支撐使用中的拆卸
在鋼管腳手架實際架設或使用中,經常出現以下兩種情況:
一是在腳手架搭設過程中,由于施工工地的變化而造成連墻件在正常設置上有困難;
二要在建筑主體進入外墻裝修階段時,建筑企業為有利于外墻涂料施工,自主將原來設置的墻件拆卸。這時可采取如下的更換設置方法或防范措施。
1)在窗門洞邊處設置,如圖所示4;
2)在墻體未砌墻之前可以通過抱柱設置,一般來說立桿同柱不在相同橫著位置,這時就將連墻桿同內、外豎向水平桿一起可靠聯接,如圖8所示8a、b、c

6.2在模板支撐使用結束后的拆卸
在外墻裝修結束后的腳手架扣件式無縫鋼管外鋼管腳手架拆卸工作中,連墻件的拆卸也應引起足夠注意。連墻件必須隨鋼管腳手架自上而下、順利進行拆卸,禁止先將連墻件整層拆卸后再拆鋼管腳手架;鋼管腳手架按段拆卸時,其拆卸坡度不可超過2步,如坡度超過2步,應想方設法加設其他相應結構加固對策,即在拆卸坡度接口處數據加密設置臨時拉節點:
1)在窗門洞邊處設置;
2)在陽臺欄桿或攔板處設置(攔板或護欄多在墻體砌墻后開始施工,拆卸鋼管腳手架前已經完成,可以利用),如圖所示7。
(本平臺"常州精密鋼管博客網"的部分圖文來自網絡轉載,轉載目的在于傳遞更多技術信息。我們尊重原創,版權歸原作者所有,若未能找到作者和出處望請諒解,敬請聯系主編微信號:steel_tube,進行刪除或付稿費,多謝!)

